Vi consigliamo la lettura delle pagine di questo dossier nell’ordine presentato. Tutto il dossier inoltre è contenuto nell’allegato sottostante. |
 |
DOSSIER PROGETTI S. AGOSTINO |
 |
 |
 |
|
 |
| Tutta la vicenda del complesso di S. Agostino, dal 1998 anno in cui con Decreto Ministeriale 24.09.88 viende dichiarato monumento nazionale ad oggi. >> Leggi Tutto |
 |
 |
 |
|
 |
Come si fa a passare da semplice e poco dispendiosa sistemazione di tutto quello che perfettamente era arrivato fino ai nostri giorni, ad una costosa "valorizzazione" vietata da tutte le normative che distrugge l’integrità di un monumento. Come si modifica irreversibilmente un complesso unico nei Sassi di Matera al quale nel corso di oltre 8 secoli è stato aggiunto costantemente valore partendo da una chiesa rupestre ipogea del XII secolo. >> Leggi Tutto |
 |
 |
 |
|
 |
Il confronto tra la vicenda di S. Agostino e articoli del Codice dei Beni Culturali e del Paesaggio, che descrive chiaramente qual’è il compito del Ministero, e cosa sono la tutela, la valorizzazione, la fruizione e gli interventi vietati per la legge italiana.
Sono le strutture del Ministero che hanno il compito di vigilare e far rispettare queste norme. >> Leggi Tutto |
 |
 |
 |
|
 |
La Soprintendenza allega nella variante di progetto 2008 una lunga serie di tavole che vorrebbero descrivere l’evoluzione, la trasformazione e lo stato di fatto prima dell’inizio dei lavori del parcheggio interrato del 2006. Ma lo stato di fatto lo descrive anche molto bene il parere del 1995 con cui la stessa Soprintendenza blocca l’appalto del Comune di Matera. Immagini e descrizioni dello stato di fatto e confronto con gli atti prodotti dalla Soprintendenza. >> Leggi Tutto |
 |
 |
 |
|
 |
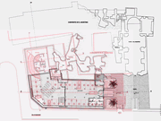
Cosa manca nei rilievi e nelle descrizioni del Complesso.
Da una planimetria che riporta solo le sagome degli elementi del complesso monumentale inerente lo stato di fatto nell’anno 2005, abbiamo aggiunto almeno una legenda utile per comprendere come è composto il monumento. >> Leggi Tutto |
 |
 |
 |
|
 |
Nelle planimetrie e in tutti i progetti della Soprintendenza non c’è traccia di una struttura ipogea presente nei giardini a fianco all’ingresso murato agli ipogei. E’ una struttura che è sempre esistita e che con l’abbattimento dei cipressi nel 2005 diventa visibile in tutte le immagini, comprese quelle allegata come documentazione nel 2008 dalla Soprintendenza BAP Basilicata. Dove si trova e che fine ha fatto questa struttura. >> Leggi Tutto |
 |
 |
 |
|
 |
La Chiesa rupestre di San Giuliano in un progetto di valorizzazione doveva essere la cosa più importante da recuperare all’interno del percorso esistente negli ipogei di S. Agostino.
Invece la Chiesa i cui dipinti vennero restaurati con fondi del Ministero nel 2003 rimane tagliata fuori dagli ipogei solo perchè non si è tolta la muratura che ostruisce il varco. >> Leggi Tutto |
 |
 |
 |
|
 |
Descrizione e immagini fotografiche di tutti i varchi murati presenti negli ipogei del complesso. Dove si trovano e a cosa corrispondono nelle immagini e nelle planimetrie.
>> Leggi Tutto |
 |
 |
 |
|
 |
Descrizione e immagini fotografiche del primo accesso agli ipogei presente nei progetti della Soprintendenza BAP Basilicata. Quello che doveva essere accessibile grazie alla realizzazione del parcheggio o della sala convegni interrata.
Com’era nel 2005 prima dei lavori e come è adesso. >> Leggi Tutto |
 |
 |
 |
|
 |
Descrizione e immagini fotografiche del secondo accesso agli ipogei presente nei progetti della Soprintendenza BAP Basilicata.
Com’era nel 2005 prima dei lavori e come è adesso. >> Leggi Tutto |
 |
 |
 |
|
 |
Normalmente in un progetto di conservazione il rilievo delle preesistenze determina le scelte progettuali. In questo caso sono le scelte progettuali che determinano il rilievo. Sovrapponendo le planimetrie della Soprintendenza BAP Basilicata che descrivono lo stato di fatto del 2000 e quelle corrispondenti della variante di progetto 2008 o quelle del parcheggio interrato del 2004, gli immobili del complesso monumentale perdono la loro immobilità. Eppure tutte le planimetrie si riferiscono allo stesso complesso e sono tutte in scala 1:100. >> Leggi Tutto |
 |
 |
 |
|
 |
Sovrapponendo anche le planimetrie corrispondenti della Soprintendenza BAP Basilicata della variante di progetto 2008 e quelle del parcheggio interrato del 2004, gli immobili del complesso monumentale continuano ad essere fluttuanti.
Anche in questo caso tutte le planimetrie si riferiscono allo stesso complesso e sono tutte in scala 1:100. >> Leggi Tutto |
 |
 |
 |
|
 |
La città storica, con i suoi vuoti ed i suoi interrogativi, luogo in continua scoperta, rilettura e reinterpretazione come tutti i fenomeni storici sempre "mai indagati abbastanza", rappresenta oggi per la città contemporanea la risorsa culturale ed il riferimento più autentico per l’avvenire.
>> Leggi Tutto |
 |
 |
 |